Перейти к контенту
Подбор и сравнение проектов домов от застройщиков Московской области
Подборщик домов
Калькулятор сметы
Калькулятор площади
Форум
Блог
Главная
›
Каталог проектов
›
Проект U-171-1K
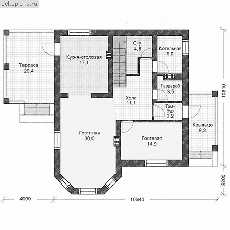
Проект U-171-1K
Застройщик: Юникс-Строй
173.57 м²
1 / 3
🏠
173.57 м²
📐
2 этаж
🧱
Кирпич
Похожие проекты
Похожие по цене
Похожие по площади
Проект двухэтажного коттеджа "Красногорье" из газобетона
4 спальн. · 2 этаж
от 14 227 000 ₽
→
Проект U-203-1P
2 этаж
от 14 226 800 ₽
→
Проект V-172-1K
2 этаж
от 14 222 900 ₽
→
Проект U-173-1P
2 этаж
от 12 149 900 ₽
→
Проект D-174-1P
3 этаж
от 12 149 200 ₽
→
Проект D-165-5P
2 этаж
от 12 145 000 ₽
→
На сайт застройщика