Перейти к контенту
Подбор и сравнение проектов домов от застройщиков Московской области
Подборщик домов
Калькулятор сметы
Калькулятор площади
Форум
Блог
Главная
›
Каталог проектов
›
Проект D-180-1D
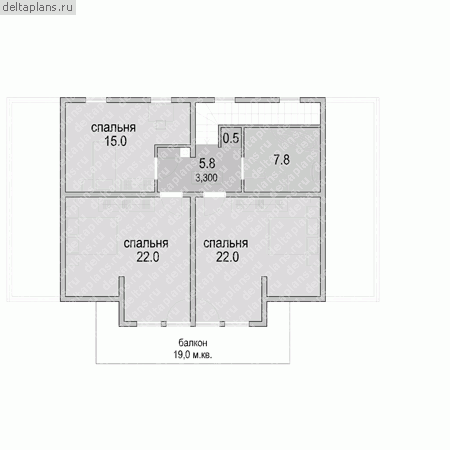
Проект D-180-1D
Застройщик: Юникс-Строй
180.0 м²
1 / 3
🏠
180.0 м²
📐
2 этаж
🧱
Дерево
Похожие проекты
Похожие по цене
Похожие по площади
Проект K-386-1P
3 этаж
от 26 978 000 ₽
→
Проект U-329-1K
2 этаж
от 26 978 000 ₽
→
Проект U-386-1P
3 этаж
от 27 036 800 ₽
→
Дом Горки 2 из газобетона: заказать в Москве по низкой цене
4 спальн. · 2 санузл. · 2 этаж
от 9 690 000 ₽
→
Дом Горки 2 из кирпича: заказать в Москве по низкой цене
4 спальн. · 2 санузл. · 2 этаж
от 9 690 000 ₽
→
Проект DOMFIX DUO - двухэтажный дом из газобетона
4 спальн. · 2 этаж
от 9 500 000 ₽
→
На сайт застройщика