Перейти к контенту
Подбор и сравнение проектов домов от застройщиков Московской области
Подборщик домов
Калькулятор сметы
Калькулятор площади
Форум
Блог
Главная
›
Каталог проектов
›
Проект D-388-1D
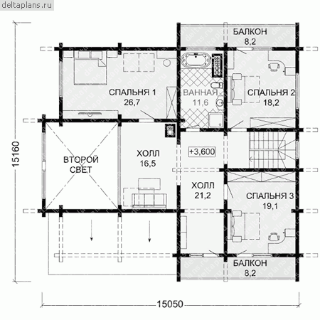
Проект D-388-1D
Застройщик: Юникс-Строй
388.5 м²
1 / 4
🏠
388.5 м²
📐
3 этаж
🧱
Дерево
Похожие проекты
Похожие по цене
Похожие по площади
Проект D-429-1D
3 этаж
от 58 425 000 ₽
→
Проект G-390-1D
3 этаж
от 58 545 000 ₽
→
Проект S-706-1K
3 этаж
от 57 892 000 ₽
→
Проект дома V-388-1P
3 этаж
от 27 188 000 ₽
→
Дом из газобетонных блоков С-389 ГБ «Аура»
5 спальн. · 3 санузл. · 2 этаж
от 16 214 000 ₽
→
Дом из керамических блоков С-389 КЕ «Аура»
5 спальн. · 3 санузл. · 2 этаж
от 16 214 000 ₽
→
На сайт застройщика