Перейти к контенту
Подбор и сравнение проектов домов от застройщиков Московской области
Подборщик домов
Калькулятор сметы
Калькулятор площади
Форум
Блог
Главная
›
Каталог проектов
›
Проект G-390-1D
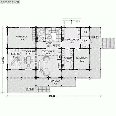
Проект G-390-1D
Застройщик: Юникс-Строй
390.3 м²
1 / 4
🏠
390.3 м²
📐
3 этаж
🧱
Дерево
Похожие проекты
Похожие по цене
Похожие по площади
Проект D-429-1D
3 этаж
от 58 425 000 ₽
→
Проект D-388-1D
3 этаж
от 58 275 000 ₽
→
Проект U-717-1K
3 этаж
от 58 847 300 ₽
→
Большой современный дом «Элленберг»
5 спальн. · 3 санузл. · 2 этаж
от 23 424 000 ₽
→
Дом Покровское 1 из газобетона: заказать в Москве по низкой цене
3 санузл. · 2 этаж
от 14 560 000 ₽
→
Дом Покровское 1 из кирпича: заказать в Москве по низкой цене
3 санузл. · 2 этаж
от 14 560 000 ₽
→
На сайт застройщика