Перейти к контенту
Подбор и сравнение проектов домов от застройщиков Московской области
Подборщик домов
Калькулятор сметы
Калькулятор площади
Форум
Блог
Главная
›
Каталог проектов
›
Проект G-165-1D
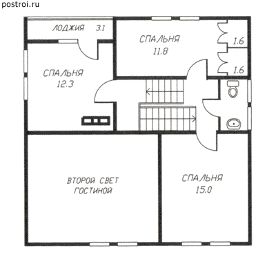
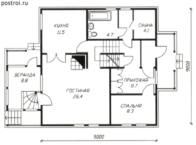
Проект G-165-1D
Застройщик: Юникс-Строй
164.9 м²
1 / 4
🏠
164.9 м²
📐
3 этаж
🧱
Дерево
Похожие проекты
Похожие по цене
Похожие по площади
Проект M-164-1D
2 этаж
от 24 735 000 ₽
→
Проект K-302-1K
2 этаж
от 24 739 400 ₽
→
Дом Двухэтажный дом в Софьино из газобетона: заказать в Москве по низкой цене
3 санузл. · 2 этаж
от 24 730 000 ₽
→
Проект двухэтажного каркасного дома Вилла L под ключ от компании БАКО
4 спальн. · 2 санузл. · 2 этаж
от 7 263 300 ₽
→
Проект двухэтажного каркасного дома Тетрис L под ключ от компании БАКО
3 спальн. · 2 санузл. · 2 этаж
от 8 157 800 ₽
→
Проект D-165-1P
2 этаж
от 11 543 000 ₽
→
На сайт застройщика