Перейти к контенту
Подбор и сравнение проектов домов от застройщиков Московской области
Подборщик домов
Калькулятор сметы
Калькулятор площади
Форум
Блог
Главная
›
Каталог проектов
›
Проект K-302-1K
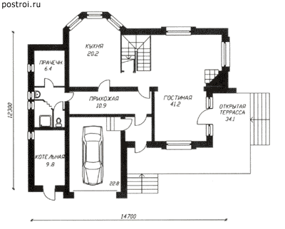
Проект K-302-1K
Застройщик: Юникс-Строй
301.7 м²
1 / 3
🏠
301.7 м²
📐
2 этаж
🧱
Кирпич
Похожие проекты
Похожие по цене
Похожие по площади
Проект M-301-1K
2 этаж
от 24 743 500 ₽
→
Проект G-165-1D
3 этаж
от 24 735 000 ₽
→
Проект M-164-1D
2 этаж
от 24 735 000 ₽
→
Проект M-301-1K
2 этаж
от 24 743 500 ₽
→
Проект L-302-1K
2 этаж
от 24 723 000 ₽
→
Дом по проекту «ЗС 401-18» - Золотое Сечение
2 спальн. · 4 санузл.
от 37 750 000 ₽
→
На сайт застройщика