Перейти к контенту
Подбор и сравнение проектов домов от застройщиков Московской области
Подборщик домов
Калькулятор сметы
Калькулятор площади
Форум
Блог
Главная
›
Каталог проектов
›
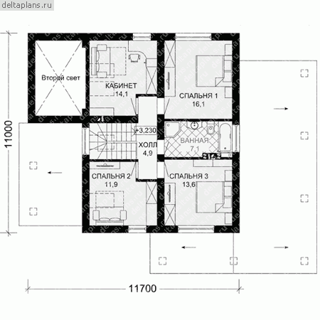
Проект G-175-1P
Проект G-175-1P
Застройщик: Юникс-Строй
174.6 м²
1 / 3
🏠
174.6 м²
📐
2 этаж
🧱
Пеноблок
Похожие проекты
Похожие по цене
Похожие по площади
Проект дома «Слоун»
3 спальн. · 1 этаж
от 12 228 000 ₽
→
Проект I-175-1P
2 этаж
от 12 229 000 ₽
→
Проект дома из керамоблоков 11х11 ТКБ-163: цена по запросу
5 спальн. · 2 санузл. · 2 этаж
от 12 230 000 ₽
→
Проект дома «Брайен»
3 спальн. · 1 этаж
от 14 682 000 ₽
→
Проект одноэтажного дома "Корица" из бруса
5 спальн. · 2 этаж
от 13 440 607 ₽
→
Проект A-291-1K
2 этаж
от 14 309 000 ₽
→
На сайт застройщика