Перейти к контенту
Подбор и сравнение проектов домов от застройщиков Московской области
Подборщик домов
Калькулятор сметы
Калькулятор площади
Форум
Блог
Главная
›
Каталог проектов
›
Проект I-175-1P
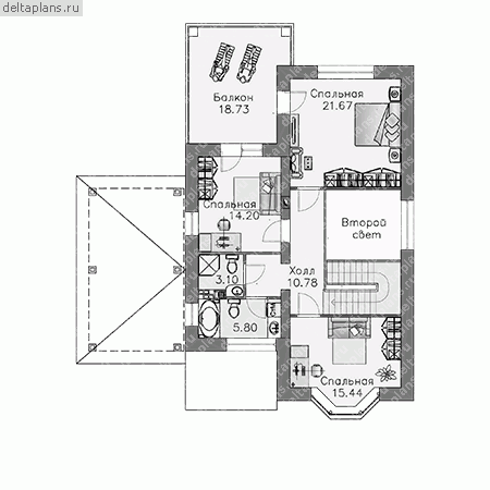
Проект I-175-1P
Застройщик: Юникс-Строй
174.7 м²
1 / 3
🏠
174.7 м²
📐
2 этаж
🧱
Пеноблок
Похожие проекты
Похожие по цене
Похожие по площади
Проект дома «Слоун»
3 спальн. · 1 этаж
от 12 228 000 ₽
→
Проект дома из керамоблоков 11х11 ТКБ-163: цена по запросу
5 спальн. · 2 санузл. · 2 этаж
от 12 230 000 ₽
→
Проект T-149-1K
2 этаж
от 12 234 400 ₽
→
Проект E-174-1D
3 этаж
от 26 205 000 ₽
→
Проект N-174-1K
2 этаж
от 14 325 400 ₽
→
Проект G-175-1P
2 этаж
от 12 222 000 ₽
→
На сайт застройщика