Перейти к контенту
Подбор и сравнение проектов домов от застройщиков Московской области
Подборщик домов
Калькулятор сметы
Калькулятор площади
Форум
Блог
Главная
›
Каталог проектов
›
Проект G-224-1D
Проект G-224-1D
Застройщик: Юникс-Строй
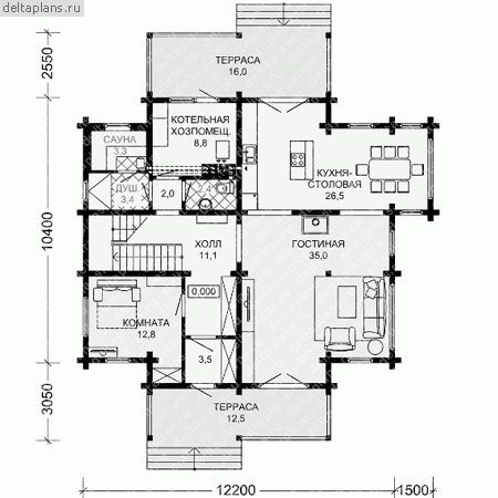
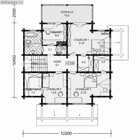
224.3 м²
1 / 3
🏠
224.3 м²
🚿
4 санузл.
📐
2 этаж
🧱
Дерево
Похожие проекты
Похожие по цене
Похожие по площади
Дом по проекту «ЗС 18-16» - Золотое Сечение
5 спальн. · 2 санузл.
от 33 625 000 ₽
→
Проект R-410-1K
3 этаж
от 33 620 000 ₽
→
Проект M-410-1K
3 этаж
от 33 677 400 ₽
→
Проект M-224-1P
2 этаж
от 15 701 000 ₽
→
Проект U-224-1K
2 этаж
от 18 394 240 ₽
→
Проект R-224-1P
2 этаж
от 15 705 200 ₽
→
На сайт застройщика