Перейти к контенту
Подбор и сравнение проектов домов от застройщиков Московской области
Подборщик домов
Калькулятор сметы
Калькулятор площади
Форум
Блог
Главная
›
Каталог проектов
›
Проект M-224-1P
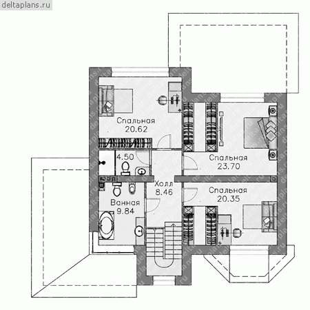
Проект M-224-1P
Застройщик: Юникс-Строй
224.3 м²
1 / 3
🏠
224.3 м²
📐
2 этаж
🧱
Пеноблок
Похожие проекты
Похожие по цене
Похожие по площади
Проект H-192-1K
2 этаж
от 15 703 000 ₽
→
Проект A-191-1K
2 этаж
от 15 698 080 ₽
→
Проект E-105-1D
1 этаж
от 15 705 000 ₽
→
Проект G-224-1D
4 санузл. · 2 этаж
от 33 645 000 ₽
→
Проект U-224-1K
2 этаж
от 18 394 240 ₽
→
Проект R-224-1P
2 этаж
от 15 705 200 ₽
→
На сайт застройщика