Перейти к контенту
Подбор и сравнение проектов домов от застройщиков Московской области
Подборщик домов
Калькулятор сметы
Калькулятор площади
Форум
Блог
Главная
›
Каталог проектов
›
Проект G-232-1K
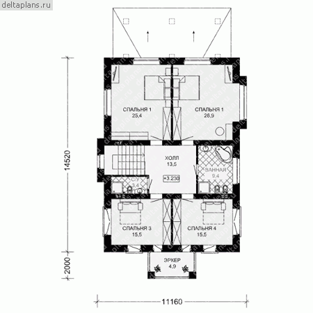
Проект G-232-1K
Застройщик: Юникс-Строй
232.3 м²
1 / 3
🏠
232.3 м²
📐
2 этаж
🧱
Кирпич
Похожие проекты
Похожие по цене
Похожие по площади
Проект D-127-1D
2 этаж
от 19 050 000 ₽
→
Проект D-126-2D
2 санузл. · 2 этаж
от 19 035 000 ₽
→
Проект N-127-1D
2 этаж
от 19 035 000 ₽
→
Проект дома E-232-1P
3 этаж
от 16 265 900 ₽
→
Проект одноэтажного коттеджа "Гасиенда" из газобетона
3 спальн. · 2 этаж
от 10 237 000 ₽
→
Дом из газобетонных блоков С-233 ГБ «Сибирь»
4 спальн. · 3 санузл. · 4 этаж
от 10 162 000 ₽
→
На сайт застройщика