Перейти к контенту
Подбор и сравнение проектов домов от застройщиков Московской области
Подборщик домов
Калькулятор сметы
Калькулятор площади
Форум
Блог
Главная
›
Каталог проектов
›
Проект G-300-1P
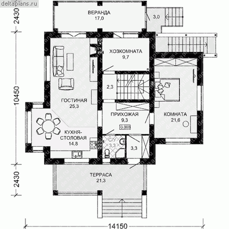
Проект G-300-1P
Застройщик: Юникс-Строй
300.7 м²
1 / 4
🏠
300.7 м²
📐
3 этаж
🧱
Пеноблок
Похожие проекты
Похожие по цене
Похожие по площади
Проект C-257-1K
3 этаж
от 21 044 480 ₽
→
Проект K-301-1P
2 этаж
от 21 070 000 ₽
→
Проект Y-155-1D
1 этаж
от 21 075 000 ₽
→
Проект U-300-1K
2 этаж
от 24 663 960 ₽
→
Проект O-301-1K
3 этаж
от 24 673 800 ₽
→
Проект K-301-1P
2 этаж
от 21 070 000 ₽
→
На сайт застройщика