Перейти к контенту
Подбор и сравнение проектов домов от застройщиков Московской области
Подборщик домов
Калькулятор сметы
Калькулятор площади
Форум
Блог
Главная
›
Каталог проектов
›
Проект O-301-1K
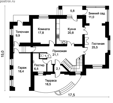
Проект O-301-1K
Застройщик: Юникс-Строй
300.9 м²
1 / 4
🏠
300.9 м²
📐
3 этаж
🧱
Кирпич
Похожие проекты
Похожие по цене
Похожие по площади
Проект U-300-1K
2 этаж
от 24 663 960 ₽
→
Проект «Limburg»
5 спальн. · 5 санузл. · 2 этаж
от 24 650 000 ₽
→
Проект «Limburg»
5 спальн. · 5 санузл. · 2 этаж
от 24 650 000 ₽
→
Проект K-301-1P
2 этаж
от 21 070 000 ₽
→
Проект U-300-1K
2 этаж
от 24 663 960 ₽
→
Проект G-300-1P
3 этаж
от 21 049 000 ₽
→
На сайт застройщика