Перейти к контенту
Подбор и сравнение проектов домов от застройщиков Московской области
Подборщик домов
Калькулятор сметы
Калькулятор площади
Форум
Блог
Главная
›
Каталог проектов
›
Проект H-185-1P
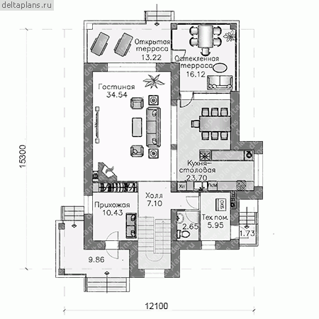
Проект H-185-1P
Застройщик: Юникс-Строй
185.1 м²
1 / 3
🏠
185.1 м²
📐
2 этаж
🧱
Пеноблок
Похожие проекты
Похожие по цене
Похожие по площади
Проект U-157-2K
2 этаж
от 12 956 000 ₽
→
Вилла с тремя открытыми террасами «Битам»
4 спальн. · 3 санузл. · 2 этаж
от 12 966 000 ₽
→
Проект W-158-1K
2 этаж
от 12 947 800 ₽
→
Проект V-185-1K
2 этаж
от 15 172 460 ₽
→
Проект двухэтажного коттеджа "Артуа" из газобетона
4 спальн. · 2 этаж
от 8 645 000 ₽
→
Проект одноэтажного каркасного дома "Фигаро"
3 спальн. · 2 этаж
от 13 566 326 ₽
→
На сайт застройщика