Перейти к контенту
Подбор и сравнение проектов домов от застройщиков Московской области
Подборщик домов
Калькулятор сметы
Калькулятор площади
Форум
Блог
Главная
›
Каталог проектов
›
Проект U-157-2K
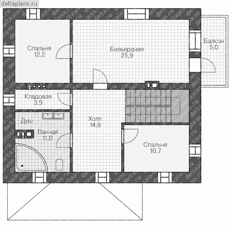
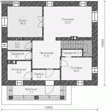
Проект U-157-2K
Застройщик: Юникс-Строй
158.0 м²
1 / 3
🏠
158.0 м²
📐
2 этаж
🧱
Кирпич
Похожие проекты
Похожие по цене
Похожие по площади
Проект H-185-1P
2 этаж
от 12 957 000 ₽
→
Проект W-158-1K
2 этаж
от 12 947 800 ₽
→
Вилла с тремя открытыми террасами «Битам»
4 спальн. · 3 санузл. · 2 этаж
от 12 966 000 ₽
→
Проект одноэтажного каркасного дома "Пилигрим"
5 спальн. · 2 этаж
от 11 887 161 ₽
→
Проект одноэтажного дома с террасой Flat-02-158 м² — Домострой
4 спальн. · 2 санузл. · 1 этаж
от 14 167 870 ₽
→
Дом по проекту «ЗС 795-20» - Золотое Сечение
4 спальн. · 2 санузл.
от 19 750 000 ₽
→
На сайт застройщика