Перейти к контенту
Подбор и сравнение проектов домов от застройщиков Московской области
Подборщик домов
Калькулятор сметы
Калькулятор площади
Форум
Блог
Главная
›
Каталог проектов
›
Проект J-498-1K
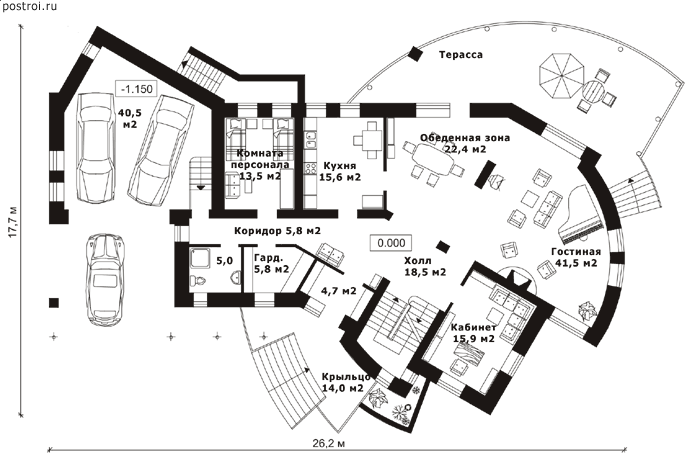
Проект J-498-1K
Застройщик: Юникс-Строй
498.0 м²
1 / 4
🏠
498.0 м²
📐
3 этаж
🧱
Кирпич
Похожие проекты
Похожие по цене
Похожие по площади
Проект E-498-1K
3 этаж
от 40 836 000 ₽
→
Проект Y-272-1D
3 этаж
от 40 770 000 ₽
→
Большой коттедж с бассейном «Пант»
4 спальн. · 7 санузл. · 2 этаж
от 40 764 000 ₽
→
Проект E-498-1K
3 этаж
от 40 836 000 ₽
→
Проект одноэтажного дома "Фортуна 2" из бруса
2 этаж
от 33 601 519 ₽
→
Проект M-496-1K
3 этаж
от 40 717 920 ₽
→
На сайт застройщика