Перейти к контенту
Подбор и сравнение проектов домов от застройщиков Московской области
Подборщик домов
Калькулятор сметы
Калькулятор площади
Форум
Блог
Главная
›
Каталог проектов
›
Проект J-546-1K
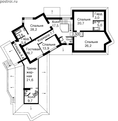
Проект J-546-1K
Застройщик: Юникс-Строй
546.5 м²
1 / 3
🏠
546.5 м²
📐
2 этаж
🧱
Кирпич
Похожие проекты
Похожие по цене
Похожие по площади
Проект J-547-1K
2 этаж
от 44 821 200 ₽
→
Двухэтажный коттедж в стиле Райта «Редмонд»
5 спальн. · 7 санузл. · 2 этаж
от 44 796 000 ₽
→
Проект V-547-1K
3 этаж
от 44 886 800 ₽
→
Проект J-547-1K
2 этаж
от 44 821 200 ₽
→
Проект V-547-1K
3 этаж
от 44 886 800 ₽
→
Проект L-545-1D
2 этаж
от 81 795 000 ₽
→
На сайт застройщика