Перейти к контенту
Подбор и сравнение проектов домов от застройщиков Московской области
Подборщик домов
Калькулятор сметы
Калькулятор площади
Форум
Блог
Главная
›
Каталог проектов
›
Проект L-451-1K
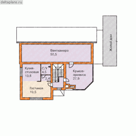
Проект L-451-1K
Застройщик: Юникс-Строй
450.8 м²
1 / 4
🏠
450.8 м²
📐
3 этаж
🧱
Кирпич
Похожие проекты
Похожие по цене
Похожие по площади
Проект I-451-1K
3 этаж
от 37 014 800 ₽
→
Проект M-246-1D
3 этаж
от 36 909 000 ₽
→
Проект одноэтажного коттеджа "Грунин" из газобетона
5 спальн. · 3 этаж
от 37 051 000 ₽
→
Проект U-451-1P
3 этаж
от 31 585 400 ₽
→
Проект дома «Florence»
3 спальн. · 4 санузл.
от 22 565 000 ₽
→
Проект дома «Florence»
3 спальн. · 4 санузл.
от 22 565 000 ₽
→
На сайт застройщика