Перейти к контенту
Подбор и сравнение проектов домов от застройщиков Московской области
Подборщик домов
Калькулятор сметы
Калькулятор площади
Форум
Блог
Главная
›
Каталог проектов
›
Проект M-132-1D
Проект M-132-1D
Застройщик: Юникс-Строй
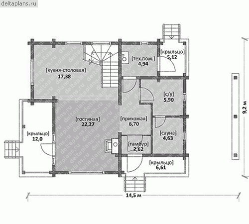
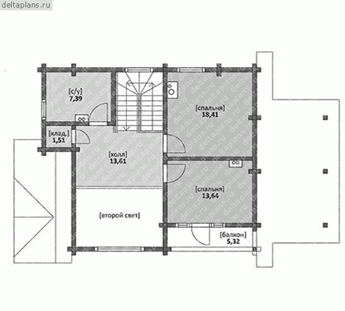
132.68 м²
1 / 3
🏠
132.68 м²
📐
2 этаж
🧱
Дерево
Похожие проекты
Похожие по цене
Похожие по площади
Проект G-243-1K
3 этаж
от 19 901 400 ₽
→
Проект G-284-1P
2 этаж
от 19 908 000 ₽
→
Проект дома «Medford»
3 спальн. · 4 санузл.
от 19 910 000 ₽
→
Проект G-133-1P
2 этаж
от 9 289 000 ₽
→
Канадец 15
4 спальн. · 2 санузл. · 2 этаж
от 4 379 800 ₽
→
Проект A-133-1P
2 этаж
от 9 282 700 ₽
→
На сайт застройщика