Перейти к контенту
Подбор и сравнение проектов домов от застройщиков Московской области
Подборщик домов
Калькулятор сметы
Калькулятор площади
Форум
Блог
Главная
›
Каталог проектов
›
Проект G-133-1P
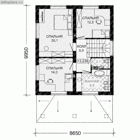
Проект G-133-1P
Застройщик: Юникс-Строй
132.7 м²
1 / 3
🏠
132.7 м²
📐
2 этаж
🧱
Пеноблок
Похожие проекты
Похожие по цене
Похожие по площади
Проект дома "Троицк" под ключ | ЭкоТех
2 спальн. · 1 санузл. · 1 этаж
от 9 295 000 ₽
→
Проект A-133-1P
2 этаж
от 9 282 700 ₽
→
Проект одноэтажного каркасного дома "Бейд"
3 спальн. · 2 этаж
от 9 278 844 ₽
→
Проект M-132-1D
2 этаж
от 19 902 000 ₽
→
Канадец 15
4 спальн. · 2 санузл. · 2 этаж
от 4 379 800 ₽
→
Проект A-133-1P
2 этаж
от 9 282 700 ₽
→
На сайт застройщика