Перейти к контенту
Подбор и сравнение проектов домов от застройщиков Московской области
Подборщик домов
Калькулятор сметы
Калькулятор площади
Форум
Блог
Главная
›
Каталог проектов
›
Проект M-180-1P
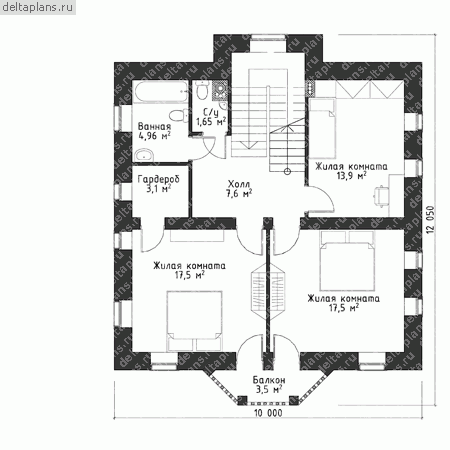
Проект M-180-1P
Застройщик: Юникс-Строй
184.5 м²
1 / 4
🏠
184.5 м²
📐
3 этаж
🧱
Пеноблок
Похожие проекты
Похожие по цене
Похожие по площади
Проект B-184-1P
2 этаж
от 12 915 000 ₽
→
Проект дома D-189-1P
2 этаж
от 12 915 000 ₽
→
Проект дома из керамоблоков 9х12 ТКБ-170: цена 7372000 руб.
4 спальн. · 3 санузл. · 2 этаж
от 12 916 000 ₽
→
Проект B-184-1P
2 этаж
от 12 915 000 ₽
→
Проект дома D-189-1P
2 этаж
от 12 915 000 ₽
→
Проект R-184-1P
2 этаж
от 12 907 300 ₽
→
На сайт застройщика