Перейти к контенту
Подбор и сравнение проектов домов от застройщиков Московской области
Подборщик домов
Калькулятор сметы
Калькулятор площади
Форум
Блог
Главная
›
Каталог проектов
›
Проект R-184-1P
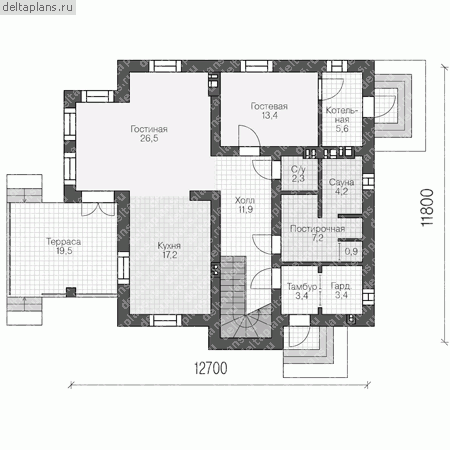
Проект R-184-1P
Застройщик: Юникс-Строй
184.39 м²
1 / 3
🏠
184.39 м²
📐
2 этаж
🧱
Пеноблок
Похожие проекты
Похожие по цене
Похожие по площади
Проект 3 спальни, второй свет № 363
2 этаж
от 12 910 440 ₽
→
«ТОПДОМ 1.260»
1 этаж
от 12 900 000 ₽
→
Проект B-184-1P
2 этаж
от 12 915 000 ₽
→
Проект O-203-1K
2 этаж
от 15 111 780 ₽
→
Проект B-184-1P
2 этаж
от 12 915 000 ₽
→
Проект M-180-1P
3 этаж
от 12 915 000 ₽
→
На сайт застройщика