Перейти к контенту
Подбор и сравнение проектов домов от застройщиков Московской области
Подборщик домов
Калькулятор сметы
Калькулятор площади
Форум
Блог
Главная
›
Каталог проектов
›
Проект M-228-1D
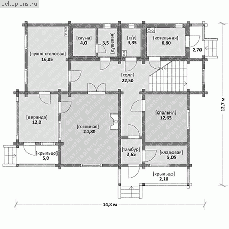
Проект M-228-1D
Застройщик: Юникс-Строй
228.5 м²
1 / 3
🏠
228.5 м²
📐
2 этаж
🧱
Дерево
Похожие проекты
Похожие по цене
Похожие по площади
Проект Y-261-1D
2 этаж
от 34 246 500 ₽
→
Двухэтажный дом в стиле Райта «Далс»
7 спальн. · 6 санузл. · 2 этаж
от 34 308 000 ₽
→
Проект U-228-1D
2 этаж
от 34 239 000 ₽
→
Проект G-301-2P
2 этаж
от 15 995 000 ₽
→
Проект R-229-1K
2 этаж
от 18 737 000 ₽
→
Проект O-231-1K
3 этаж
от 18 732 900 ₽
→
На сайт застройщика