Перейти к контенту
Подбор и сравнение проектов домов от застройщиков Московской области
Подборщик домов
Калькулятор сметы
Калькулятор площади
Форум
Блог
Главная
›
Каталог проектов
›
Проект Y-261-1D
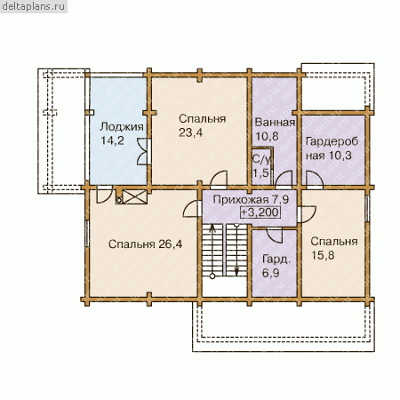
Проект Y-261-1D
Застройщик: Юникс-Строй
228.31 м²
1 / 3
🏠
228.31 м²
📐
2 этаж
🧱
Дерево
Похожие проекты
Похожие по цене
Похожие по площади
Проект U-228-1D
2 этаж
от 34 239 000 ₽
→
Проект M-228-1D
2 этаж
от 34 275 000 ₽
→
Двухэтажный дом в стиле Райта «Далс»
7 спальн. · 6 санузл. · 2 этаж
от 34 308 000 ₽
→
Проект U-226-1P
2 этаж
от 15 978 900 ₽
→
Проект U-228-1D
2 этаж
от 34 239 000 ₽
→
Проект одноэтажного коттеджа "Норберт" из газобетона
5 спальн. · 2 этаж
от 10 069 000 ₽
→
На сайт застройщика