Перейти к контенту
Подбор и сравнение проектов домов от застройщиков Московской области
Подборщик домов
Калькулятор сметы
Калькулятор площади
Форум
Блог
Главная
›
Каталог проектов
›
Проект M-244-1P
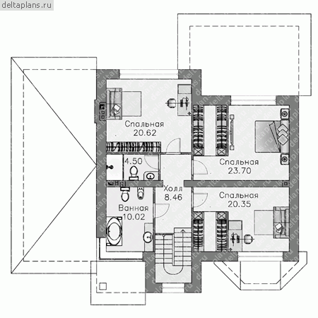
Проект M-244-1P
Застройщик: Юникс-Строй
243.9 м²
1 / 3
🏠
243.9 м²
📐
2 этаж
🧱
Пеноблок
Похожие проекты
Похожие по цене
Похожие по площади
Проект U-244-1P
3 этаж
от 17 080 000 ₽
→
Проект одноэтажного дома "Турандот" из бруса
3 спальн. · 2 этаж
от 17 065 371 ₽
→
Проект дома из газоблоков 17х16 ГББ-307: цена 11223000 руб.
5 спальн. · 2 санузл. · 2 этаж
от 17 081 000 ₽
→
Проект дома из газоблоков 18х13 ГББ-244: цена 10667000 руб.
4 спальн. · 3 санузл. · 2 этаж
от 16 371 000 ₽
→
Проект дома из керамоблоков 18х13 ТКБ-244: цена 10423000 руб.
4 спальн. · 3 санузл. · 2 этаж
от 17 910 000 ₽
→
Дом Павловское из газобетона: заказать в Москве по низкой цене
4 спальн. · 2 этаж
от 17 450 000 ₽
→
На сайт застройщика