Перейти к контенту
Подбор и сравнение проектов домов от застройщиков Московской области
Подборщик домов
Калькулятор сметы
Калькулятор площади
Форум
Блог
Главная
›
Каталог проектов
›
Проект U-244-1P
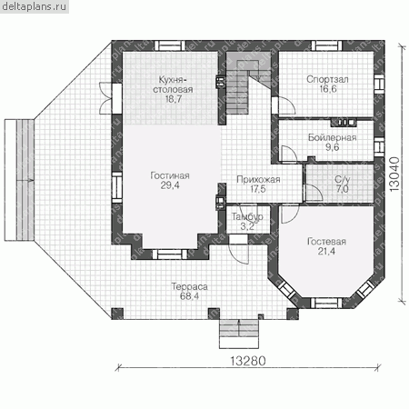
Проект U-244-1P
Застройщик: Юникс-Строй
244.0 м²
1 / 4
🏠
244.0 м²
📐
3 этаж
🧱
Пеноблок
Похожие проекты
Похожие по цене
Похожие по площади
Проект дома из газоблоков 17х16 ГББ-307: цена 11223000 руб.
5 спальн. · 2 санузл. · 2 этаж
от 17 081 000 ₽
→
Проект дома L-244-1P
2 этаж
от 17 084 900 ₽
→
Проект одноэтажного дома "Прибрежный" из бруса
5 спальн. · 2 этаж
от 17 085 572 ₽
→
Дом Павловское из газобетона: заказать в Москве по низкой цене
4 спальн. · 2 этаж
от 17 450 000 ₽
→
Дом Павловское из кирпича: заказать в Москве по низкой цене
4 спальн. · 2 этаж
от 17 450 000 ₽
→
Проект дома «Сакс»
6 спальн. · 2 этаж
от 11 570 000 ₽
→
На сайт застройщика