Перейти к контенту
Подбор и сравнение проектов домов от застройщиков Московской области
Подборщик домов
Калькулятор сметы
Калькулятор площади
Форум
Блог
Главная
›
Каталог проектов
›
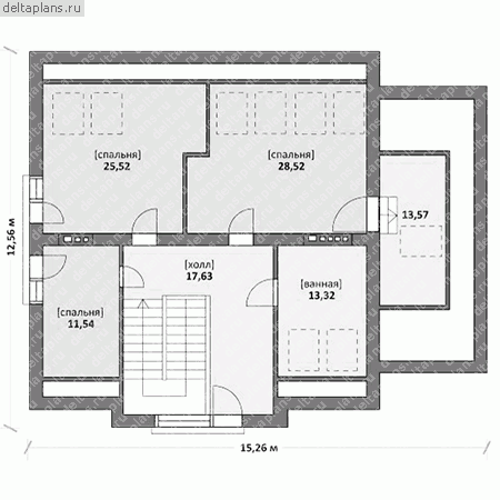
Проект M-271-1P
Проект M-271-1P
Застройщик: Юникс-Строй
271.51 м²
1 / 3
🏠
271.51 м²
📐
2 этаж
🧱
Пеноблок
Похожие проекты
Похожие по цене
Похожие по площади
Проект дома «Миллс»
3 спальн. · 1 этаж
от 19 003 000 ₽
→
Современный дом с двухскатной крышей «Энкур»
4 спальн. · 3 санузл. · 3 этаж
от 19 002 000 ₽
→
Дом по проекту «ЗС 134-22-1» - Золотое Сечение
2 спальн. · 2 санузл.
от 19 000 000 ₽
→
Проект V-272-1K
2 этаж
от 22 279 400 ₽
→
Проект Y-272-1D
3 этаж
от 40 770 000 ₽
→
Проект одноэтажного коттеджа "Ярополк" из газобетона
5 спальн. · 2 этаж
от 12 417 000 ₽
→
На сайт застройщика