Перейти к контенту
Подбор и сравнение проектов домов от застройщиков Московской области
Подборщик домов
Калькулятор сметы
Калькулятор площади
Форум
Блог
Главная
›
Каталог проектов
›
Проект U-231-1K
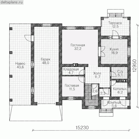
Проект U-231-1K
Застройщик: Юникс-Строй
231.85 м²
1 / 4
🏠
231.85 м²
📐
3 этаж
🧱
Кирпич
Похожие проекты
Похожие по цене
Похожие по площади
Проект M-271-1P
2 этаж
от 19 005 700 ₽
→
Проект дома «Миллс»
3 спальн. · 1 этаж
от 19 003 000 ₽
→
Современный дом с двухскатной крышей «Энкур»
4 спальн. · 3 санузл. · 3 этаж
от 19 002 000 ₽
→
Император 5
5 спальн. · 3 санузл. · 2 этаж
от 9 749 000 ₽
→
Император 5
5 спальн. · 3 санузл. · 2 этаж
от 9 749 000 ₽
→
Проект «Portofino»
от 11 600 000 ₽
→
На сайт застройщика