Перейти к контенту
Подбор и сравнение проектов домов от застройщиков Московской области
Подборщик домов
Калькулятор сметы
Калькулятор площади
Форум
Блог
Главная
›
Каталог проектов
›
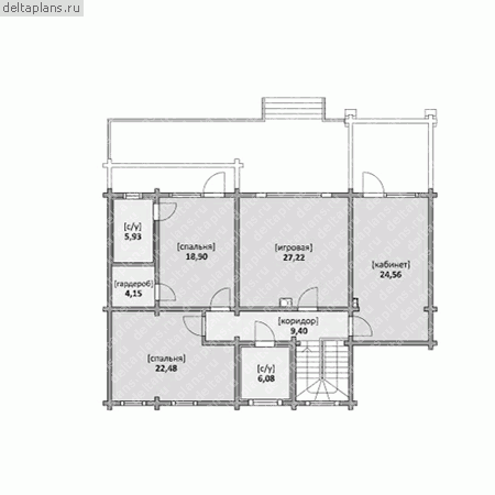
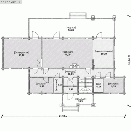
Проект M-309-1D
Проект M-309-1D
Застройщик: Юникс-Строй
309.23 м²
1 / 3
🏠
309.23 м²
📐
2 этаж
🧱
Дерево
Похожие проекты
Похожие по цене
Похожие по площади
Проект S-565-1K
3 этаж
от 46 256 200 ₽
→
Проект дома «Richland»
5 спальн. · 7 санузл.
от 46 518 000 ₽
→
Проект дома «Richland»
5 спальн. · 7 санузл.
от 46 518 000 ₽
→
Проект «Harlem»
4 спальн. · 3 санузл.
от 15 500 000 ₽
→
Проект «Harlem»
4 спальн. · 3 санузл.
от 15 500 000 ₽
→
Проект «Harlem»
4 спальн. · 3 санузл.
от 15 500 000 ₽
→
На сайт застройщика