Перейти к контенту
Подбор и сравнение проектов домов от застройщиков Московской области
Подборщик домов
Калькулятор сметы
Калькулятор площади
Форум
Блог
Главная
›
Каталог проектов
›
Проект S-565-1K
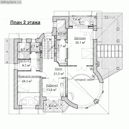
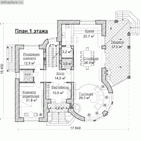
Проект S-565-1K
Застройщик: Юникс-Строй
564.1 м²
1 / 4
🏠
564.1 м²
📐
3 этаж
🧱
Кирпич
Похожие проекты
Похожие по цене
Похожие по площади
Проект M-309-1D
2 этаж
от 46 384 500 ₽
→
Проект дома «Richland»
5 спальн. · 7 санузл.
от 46 518 000 ₽
→
Проект дома «Richland»
5 спальн. · 7 санузл.
от 46 518 000 ₽
→
Дом по проекту «ЗС 1-17» - Золотое Сечение
4 спальн. · 6 санузл.
от 70 500 000 ₽
→
Двухэтажная резиденция «VITA»
4 спальн. · 5 санузл. · 2 этаж
от 33 780 000 ₽
→
Проект дома T-563-1P
2 этаж
от 39 376 400 ₽
→
На сайт застройщика