Перейти к контенту
Подбор и сравнение проектов домов от застройщиков Московской области
Подборщик домов
Калькулятор сметы
Калькулятор площади
Форум
Блог
Главная
›
Каталог проектов
›
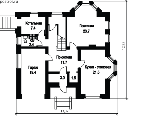
Проект O-184-1K
Проект O-184-1K
Застройщик: Юникс-Строй
268.8 м²
1 / 4
🏠
268.8 м²
📐
3 этаж
🧱
Кирпич
Похожие проекты
Похожие по цене
Похожие по площади
Проект J-269-1K
3 этаж
от 22 041 600 ₽
→
Проект дома D-229-1P
2 этаж
от 22 050 000 ₽
→
Проект особняка Бавария NEW от компании БАКО
5 спальн. · 4 санузл. · 3 этаж
от 22 055 500 ₽
→
Проект J-269-1K
3 этаж
от 22 041 600 ₽
→
Проект дома W-157-1P
3 этаж
от 18 816 000 ₽
→
Проект V-268-1P
2 этаж
от 18 821 600 ₽
→
На сайт застройщика