Перейти к контенту
Подбор и сравнение проектов домов от застройщиков Московской области
Подборщик домов
Калькулятор сметы
Калькулятор площади
Форум
Блог
Главная
›
Каталог проектов
›
Проект V-268-1P
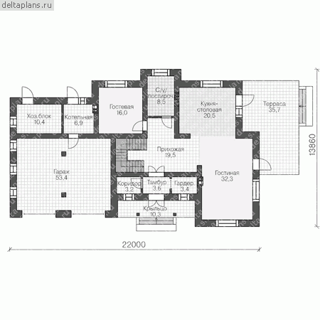
Проект V-268-1P
Застройщик: Юникс-Строй
268.88 м²
1 / 3
🏠
268.88 м²
📐
2 этаж
🧱
Пеноблок
Похожие проекты
Похожие по цене
Похожие по площади
Проект N-230-1K
3 этаж
от 18 819 000 ₽
→
Проект дома W-157-1P
3 этаж
от 18 816 000 ₽
→
Проект U-269-1P
2 этаж
от 18 804 100 ₽
→
Проект J-269-1K
3 этаж
от 22 041 600 ₽
→
Проект O-184-1K
3 этаж
от 22 041 600 ₽
→
Проект дома W-157-1P
3 этаж
от 18 816 000 ₽
→
На сайт застройщика