Перейти к контенту
Подбор и сравнение проектов домов от застройщиков Московской области
Подборщик домов
Калькулятор сметы
Калькулятор площади
Форум
Блог
Главная
›
Каталог проектов
›
Проект R-179-1P
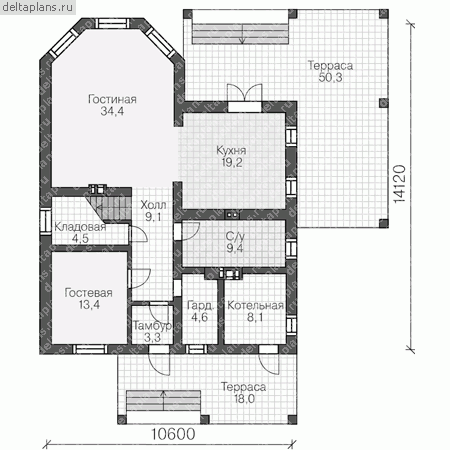
Проект R-179-1P
Застройщик: Юникс-Строй
197.29 м²
1 / 3
🏠
197.29 м²
📐
2 этаж
🧱
Пеноблок
Похожие проекты
Похожие по цене
Похожие по площади
Проект U-198-1P
2 этаж
от 13 815 900 ₽
→
Проект каркасного дома КП-188
1 этаж
от 13 800 000 ₽
→
Проект C-092-1D
1 санузл. · 1 этаж
от 13 800 000 ₽
→
Проект дома из газоблоков 10х12 ГББ-198: цена 7855000 руб.
5 спальн. · 3 санузл. · 2 этаж
от 11 361 000 ₽
→
Проект дома из керамоблоков 10х12 ТКБ-198: цена 8311000 руб.
5 спальн. · 3 санузл. · 2 этаж
от 12 406 000 ₽
→
Проект U-198-1P
2 этаж
от 13 815 900 ₽
→
На сайт застройщика