Перейти к контенту
Подбор и сравнение проектов домов от застройщиков Московской области
Подборщик домов
Калькулятор сметы
Калькулятор площади
Форум
Блог
Главная
›
Каталог проектов
›
Проект U-198-1P
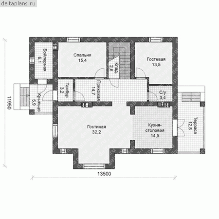
Проект U-198-1P
Застройщик: Юникс-Строй
197.37 м²
1 / 3
🏠
197.37 м²
📐
2 этаж
🧱
Пеноблок
Похожие проекты
Похожие по цене
Похожие по площади
Проект R-179-1P
2 этаж
от 13 810 300 ₽
→
Проект G-197-1P
1 этаж
от 13 827 100 ₽
→
Проект дома из керамоблоков 21х10 ТКБ-164: цена 10418000 руб.
5 спальн. · 2 санузл. · 1 этаж
от 13 829 000 ₽
→
Проект G-198-1D
2 этаж
от 29 610 000 ₽
→
Проект дома из газоблоков 10х12 ГББ-198: цена 7855000 руб.
5 спальн. · 3 санузл. · 2 этаж
от 11 361 000 ₽
→
Проект дома из керамоблоков 10х12 ТКБ-198: цена 8311000 руб.
5 спальн. · 3 санузл. · 2 этаж
от 12 406 000 ₽
→
На сайт застройщика