Перейти к контенту
Подбор и сравнение проектов домов от застройщиков Московской области
Подборщик домов
Калькулятор сметы
Калькулятор площади
Форум
Блог
Главная
›
Каталог проектов
›
Проект R-202-1P
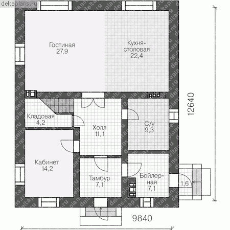
Проект R-202-1P
Застройщик: Юникс-Строй
202.15 м²
1 / 3
🏠
202.15 м²
📐
2 этаж
🧱
Пеноблок
Похожие проекты
Похожие по цене
Похожие по площади
Проект W-172-1K
2 этаж
от 14 145 000 ₽
→
Проект дома E-202-1P
2 этаж
от 14 161 000 ₽
→
Проект К-198 19 на 11, площадью 425 за 14 139 750 руб
4 спальн. · 2 этаж
от 14 139 750 ₽
→
Проект двухэтажного дома "Таруса" из бруса
5 спальн. · 2 этаж
от 15 918 319 ₽
→
Проект «First»
3 спальн. · 3 санузл. · 1 этаж
от 12 300 000 ₽
→
Одноэтажный дом «Фирст» с отдельно стоящей баней
3 спальн. · 3 санузл. · 1 этаж
от 12 138 000 ₽
→
На сайт застройщика