Перейти к контенту
Подбор и сравнение проектов домов от застройщиков Московской области
Подборщик домов
Калькулятор сметы
Калькулятор площади
Форум
Блог
Главная
›
Каталог проектов
›
Дом из клееного бруса «Альпийск» | ЭкоТех
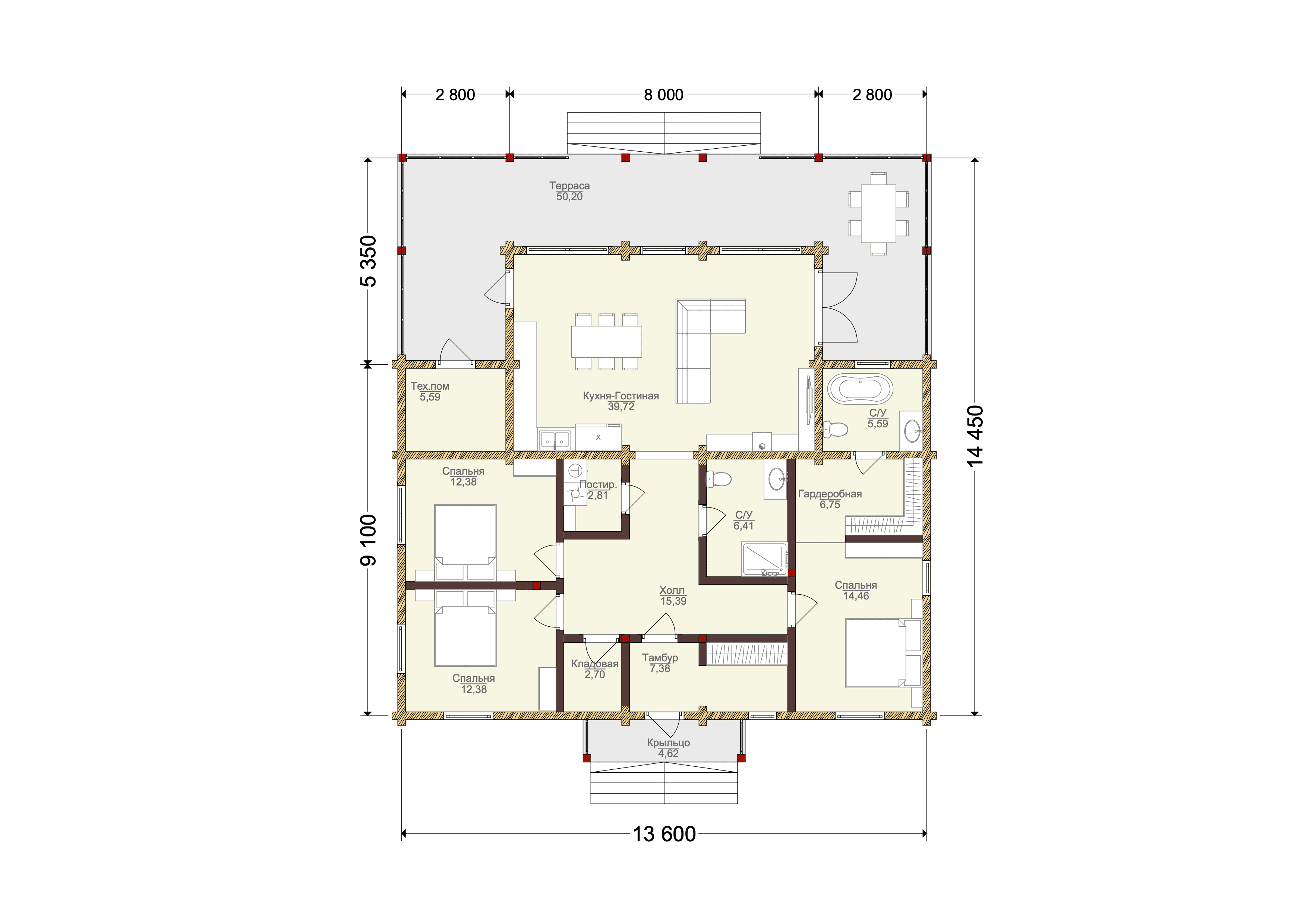
Дом из клееного бруса «Альпийск» | ЭкоТех
Застройщик: Эко-Тех
202.0 м²
1 / 2
🏠
202.0 м²
🛏
3 спален
🚿
2 санузл.
📐
1 этаж
🧱
Клееный брус
Похожие проекты
Похожие по цене
Похожие по площади
Проект дома E-167-1P
2 этаж
от 11 725 000 ₽
→
Проект A-247-1P
2 этаж
от 11 739 000 ₽
→
Проект R-167-1P
2 этаж
от 11 739 000 ₽
→
Проект R-202-1P
2 этаж
от 14 150 500 ₽
→
Проект дома «Калуга» | ЭкоТех
3 спальн. · 2 санузл. · 1 этаж
от 9 725 000 ₽
→
Проект двухэтажного дома "Таруса" из бруса
5 спальн. · 2 этаж
от 15 918 319 ₽
→
На сайт застройщика