Перейти к контенту
Подбор и сравнение проектов домов от застройщиков Московской области
Подборщик домов
Калькулятор сметы
Калькулятор площади
Форум
Блог
Главная
›
Каталог проектов
›
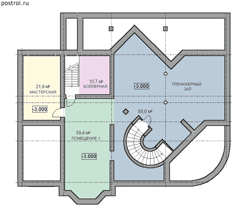
Проект R-467-1K
Проект R-467-1K
Застройщик: Юникс-Строй
467.0 м²
1 / 4
🏠
467.0 м²
📐
3 этаж
🧱
Кирпич
Похожие проекты
Похожие по цене
Похожие по площади
Проект I-467-1K
2 этаж
от 38 294 000 ₽
→
Проект дома J-548-1P
2 этаж
от 38 346 000 ₽
→
Проект S-465-1K
2 этаж
от 38 105 400 ₽
→
Проект I-467-1K
2 этаж
от 38 294 000 ₽
→
Проект S-465-1K
2 этаж
от 38 105 400 ₽
→
Проект S-464-1K
3 этаж
от 38 072 600 ₽
→
На сайт застройщика