Перейти к контенту
Подбор и сравнение проектов домов от застройщиков Московской области
Подборщик домов
Калькулятор сметы
Калькулятор площади
Форум
Блог
Главная
›
Каталог проектов
›
Проект S-252-1K
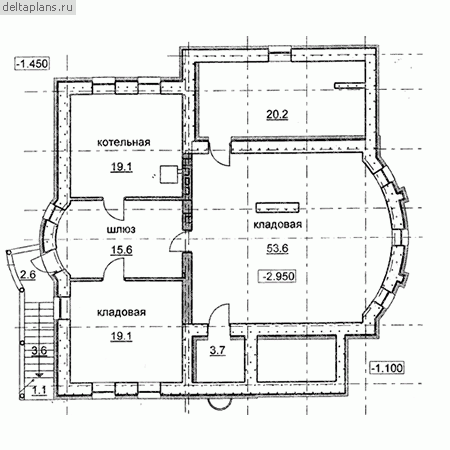
Проект S-252-1K
Застройщик: Юникс-Строй
278.8 м²
1 / 3
🏠
278.8 м²
📐
2 этаж
🧱
Кирпич
Похожие проекты
Похожие по цене
Похожие по площади
Проект U-326-1P
2 этаж
от 22 857 800 ₽
→
Проект W-279-1K
2 этаж
от 22 853 400 ₽
→
Проект U-279-1K
2 этаж
от 22 878 000 ₽
→
Проект W-279-1K
2 этаж
от 22 853 400 ₽
→
Дом КП Истра
3 спальн. · 3 санузл. · 2 этаж
от 12 920 000 ₽
→
Дом КП Истра
3 спальн. · 3 санузл. · 2 этаж
от 12 920 000 ₽
→
На сайт застройщика