Перейти к контенту
Подбор и сравнение проектов домов от застройщиков Московской области
Подборщик домов
Калькулятор сметы
Калькулятор площади
Форум
Блог
Главная
›
Каталог проектов
›
Проект U-279-1K
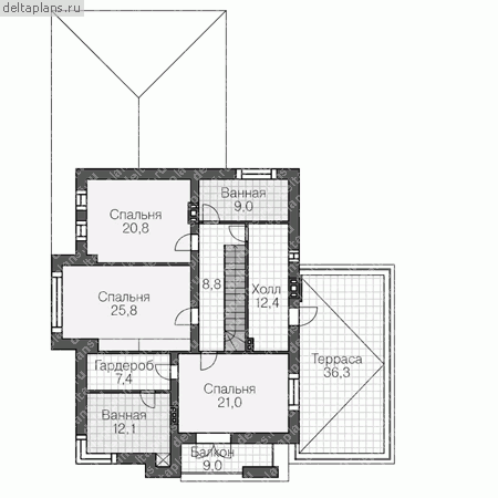
Проект U-279-1K
Застройщик: Юникс-Строй
279.0 м²
1 / 3
🏠
279.0 м²
📐
2 этаж
🧱
Кирпич
Похожие проекты
Похожие по цене
Похожие по площади
Двухэтажный дом «Джейзер» для постоянного проживания
5 спальн. · 4 санузл. · 2 этаж
от 22 890 000 ₽
→
Проект G-152-1D
2 этаж
от 22 890 000 ₽
→
Проект S-252-1K
2 этаж
от 22 861 600 ₽
→
Дом КП Истра
3 спальн. · 3 санузл. · 2 этаж
от 12 920 000 ₽
→
Дом КП Истра
3 спальн. · 3 санузл. · 2 этаж
от 12 920 000 ₽
→
Проект дома «Шайло» с цоколем
7 спальн. · 2 этаж
от 12 394 000 ₽
→
На сайт застройщика