Перейти к контенту
Подбор и сравнение проектов домов от застройщиков Московской области
Подборщик домов
Калькулятор сметы
Калькулятор площади
Форум
Блог
Главная
›
Каталог проектов
›
Проект T-120-1P
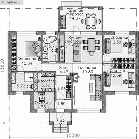
Проект T-120-1P
Застройщик: Юникс-Строй
119.7 м²
1 / 2
🏠
119.7 м²
📐
1 этаж
🧱
Пеноблок
Похожие проекты
Похожие по цене
Похожие по площади
Уэльс 23
2 санузл. · 2 этаж
от 8 379 800 ₽
→
Проект одноэтажного дома "Золотой ключик-2" из бруса
2 спальн. · 2 этаж
от 8 380 936 ₽
→
Каркасный дом С-207 КР «Бремен»
3 спальн. · 2 санузл. · 3 этаж
от 8 385 000 ₽
→
Проект M-120-1S
2 этаж
от 2 356 120 ₽
→
Проект одноэтажного дома "Фаддей" из бруса
5 спальн. · 2 этаж
от 9 912 094 ₽
→
Каркасный дом 9x8 Проект "Сардоникс"
4 спальн. · 1 санузл. · 2 этаж
от 2 593 000 ₽
→
На сайт застройщика