Перейти к контенту
Подбор и сравнение проектов домов от застройщиков Московской области
Подборщик домов
Калькулятор сметы
Калькулятор площади
Форум
Блог
Главная
›
Каталог проектов
›
Проект T-244-1P
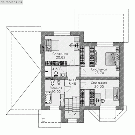
Проект T-244-1P
Застройщик: Юникс-Строй
241.34 м²
1 / 3
🏠
241.34 м²
📐
2 этаж
🧱
Пеноблок
Похожие проекты
Похожие по цене
Похожие по площади
Проект X-241-1P
2 этаж
от 16 900 100 ₽
→
Проект дома N-253-1P
2 этаж
от 16 907 100 ₽
→
Проект дома из керамоблоков 13х15 ТКБ-270: цена 9816000 руб.
5 спальн. · 4 санузл. · 2 этаж
от 16 880 000 ₽
→
Проект двухэтажного коттеджа "Памир" из газобетона
4 спальн. · 2 этаж
от 11 180 000 ₽
→
Проект D-241-1D
2 этаж
от 36 210 000 ₽
→
Проект X-241-1P
2 этаж
от 16 900 100 ₽
→
На сайт застройщика