Перейти к контенту
Подбор и сравнение проектов домов от застройщиков Московской области
Подборщик домов
Калькулятор сметы
Калькулятор площади
Форум
Блог
Главная
›
Каталог проектов
›
Проект D-241-1D
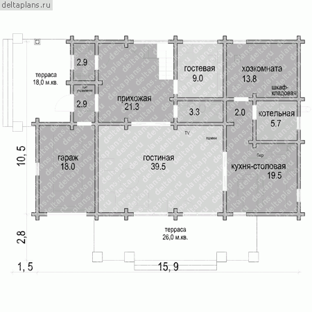
Проект D-241-1D
Застройщик: Юникс-Строй
241.4 м²
1 / 3
🏠
241.4 м²
📐
2 этаж
🧱
Дерево
Похожие проекты
Похожие по цене
Похожие по площади
Проект U-442-1K
3 этаж
от 36 235 800 ₽
→
Дом по проекту «ЗС 786-21» - Золотое Сечение
3 спальн. · 3 санузл.
от 36 250 000 ₽
→
Проект J-443-1K
3 этаж
от 36 293 200 ₽
→
Проект двухэтажного коттеджа "Памир" из газобетона
4 спальн. · 2 этаж
от 11 180 000 ₽
→
Проект X-241-1P
2 этаж
от 16 900 100 ₽
→
Проект T-244-1P
2 этаж
от 16 893 800 ₽
→
На сайт застройщика