Перейти к контенту
Подбор и сравнение проектов домов от застройщиков Московской области
Подборщик домов
Калькулятор сметы
Калькулятор площади
Форум
Блог
Главная
›
Каталог проектов
›
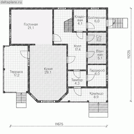
Проект U-182-1S
Проект U-182-1S
Застройщик: Юникс-Строй
182.33 м²
1 / 3
🏠
182.33 м²
🚿
4 санузл.
📐
2 этаж
🧱
Каркас
Похожие проекты
Похожие по цене
Похожие по площади
Проект P-044-1K
1 этаж
от 3 591 600 ₽
→
Проект К-4 13 на 8, площадью 107 за 4 215 000 руб
1 спальн. · 1 этаж
от 3 595 200 ₽
→
Строительство каркасного дома 9х8 "Модис" под ключ
3 спальн. · 1 санузл. · 1 этаж
от 3 598 000 ₽
→
Проект дома «Пион» | ЭкоТех
4 спальн. · 3 санузл. · 2 этаж
от 7 249 000 ₽
→
Проект T-182-1P
2 этаж
от 12 754 000 ₽
→
Проект одноэтажного дома "Дакрури" из бруса
3 спальн. · 2 этаж
от 13 160 595 ₽
→
На сайт застройщика