Перейти к контенту
Подбор и сравнение проектов домов от застройщиков Московской области
Подборщик домов
Калькулятор сметы
Калькулятор площади
Форум
Блог
Главная
›
Каталог проектов
›
Проект U-247-1P
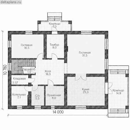
Проект U-247-1P
Застройщик: Юникс-Строй
246.75 м²
1 / 3
🏠
246.75 м²
📐
2 этаж
🧱
Пеноблок
Похожие проекты
Похожие по цене
Похожие по площади
Проект одноэтажного дома "Патрик" из бруса
5 спальн. · 2 этаж
от 17 264 780 ₽
→
Кирпичный дом С-384 К «Балу»
4 спальн. · 4 санузл. · 4 этаж
от 17 263 000 ₽
→
Проект дома M-246-1P
2 этаж
от 17 284 400 ₽
→
Проект двухэтажного коттеджа "Рубис" из газобетона
4 спальн. · 2 этаж
от 10 869 000 ₽
→
Проект дома M-246-1P
2 этаж
от 17 284 400 ₽
→
Проект дома «Ирвин»
5 спальн. · 2 этаж
от 13 135 200 ₽
→
На сайт застройщика