Перейти к контенту
Подбор и сравнение проектов домов от застройщиков Московской области
Подборщик домов
Калькулятор сметы
Калькулятор площади
Форум
Блог
Главная
›
Каталог проектов
›
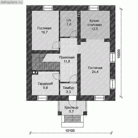
Проект U-259-1K
Проект U-259-1K
Застройщик: Юникс-Строй
258.1 м²
1 / 4
🏠
258.1 м²
📐
3 этаж
🧱
Кирпич
Похожие проекты
Похожие по цене
Похожие по площади
Проект дома E-301-1P
2 этаж
от 21 170 100 ₽
→
Проект G-258-1K
3 этаж
от 21 156 000 ₽
→
Проект U-302-1P
2 этаж
от 21 154 000 ₽
→
Проект N-258-1D
3 этаж
от 38 730 000 ₽
→
Проект К-137 23 на 11, площадью 258 за 10 191 750 руб
4 спальн. · 1 этаж
от 10 191 750 ₽
→
Проект К-137 23 на 11, площадью 258 за 10 191 750 руб
4 спальн. · 1 этаж
от 7 224 000 ₽
→
На сайт застройщика