Перейти к контенту
Подбор и сравнение проектов домов от застройщиков Московской области
Подборщик домов
Калькулятор сметы
Калькулятор площади
Форум
Блог
Главная
›
Каталог проектов
›
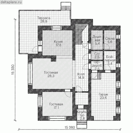
Проект U-264-1K
Проект U-264-1K
Застройщик: Юникс-Строй
264.44 м²
1 / 3
🏠
264.44 м²
📐
2 этаж
🧱
Кирпич
Похожие проекты
Похожие по цене
Похожие по площади
Дом Поздняково из газобетона: заказать в Москве по низкой цене
4 спальн. · 4 санузл. · 2 этаж
от 21 680 000 ₽
→
Дом Поздняково из кирпича: заказать в Москве по низкой цене
4 спальн. · 4 санузл. · 2 этаж
от 21 680 000 ₽
→
Проект U-265-1K
2 этаж
от 21 691 460 ₽
→
Дом из газобетонных блоков С-265 ГБ «High-Tech»
2 спальн. · 2 санузл. · 2 этаж
от 11 079 000 ₽
→
Дом из газобетонных блоков С-265 ГБ «Сидней»
3 спальн. · 2 санузл. · 3 этаж
от 10 934 000 ₽
→
Дом из керамических блоков С-265 КЕ «High-Tech»
2 спальн. · 2 санузл. · 2 этаж
от 11 079 000 ₽
→
На сайт застройщика