Перейти к контенту
Подбор и сравнение проектов домов от застройщиков Московской области
Подборщик домов
Калькулятор сметы
Калькулятор площади
Форум
Блог
Главная
›
Каталог проектов
›
Проект U-274-1P
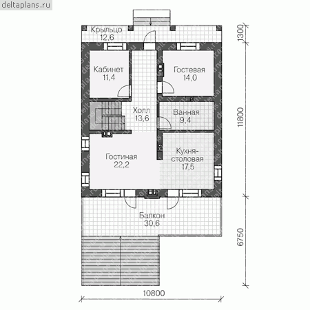
Проект U-274-1P
Застройщик: Юникс-Строй
274.04 м²
1 / 4
🏠
274.04 м²
📐
3 этаж
🧱
Пеноблок
Похожие проекты
Похожие по цене
Похожие по площади
Проект двухэтажного коттеджа "Весенняя пастораль" из газобетона
2 этаж
от 19 179 000 ₽
→
Проект двухэтажного коттеджа "Мамоново" из газобетона
6 спальн. · 3 этаж
от 19 187 000 ₽
→
Проект дома V-274-1P
2 этаж
от 19 173 000 ₽
→
Проект V-274-1K
3 санузл. · 2 этаж
от 22 476 200 ₽
→
Проект C-274-1K
3 этаж
от 22 459 800 ₽
→
Проект дома V-274-1P
2 этаж
от 19 173 000 ₽
→
На сайт застройщика