Перейти к контенту
Подбор и сравнение проектов домов от застройщиков Московской области
Подборщик домов
Калькулятор сметы
Калькулятор площади
Форум
Блог
Главная
›
Каталог проектов
›
Проект V-274-1K
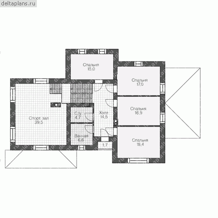
Проект V-274-1K
Застройщик: Юникс-Строй
274.1 м²
1 / 3
🏠
274.1 м²
🚿
3 санузл.
📐
2 этаж
🧱
Кирпич
Похожие проекты
Похожие по цене
Похожие по площади
Проект G-320-1P
2 этаж
от 22 460 900 ₽
→
Проект C-274-1K
3 этаж
от 22 459 800 ₽
→
Дом по проекту «ЗС 240-25» - Золотое Сечение
5 спальн. · 2 санузл.
от 22 500 000 ₽
→
Проект U-274-1P
3 этаж
от 19 182 800 ₽
→
Проект одноэтажного коттеджа "Кристалл" из газобетона
5 спальн. · 2 этаж
от 11 510 000 ₽
→
Проект C-274-1K
3 этаж
от 22 459 800 ₽
→
На сайт застройщика