Перейти к контенту
Подбор и сравнение проектов домов от застройщиков Московской области
Подборщик домов
Калькулятор сметы
Калькулятор площади
Форум
Блог
Главная
›
Каталог проектов
›
Проект U-281-1P
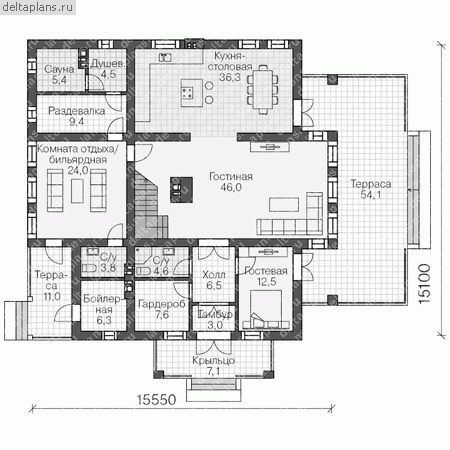
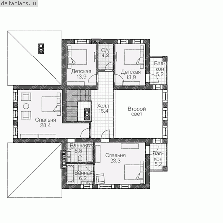
Проект U-281-1P
Застройщик: Юникс-Строй
281.61 м²
1 / 3
🏠
281.61 м²
📐
2 этаж
🧱
Пеноблок
Похожие проекты
Похожие по цене
Похожие по площади
Проект «Suzdal»
4 спальн. · 3 санузл.
от 19 700 000 ₽
→
Проект дома из газоблоков 22х16 ГББ-338: цена 13155000 руб.
5 спальн. · 3 санузл. · 2 этаж
от 19 731 000 ₽
→
Проект A-282-1P
2 этаж
от 19 740 000 ₽
→
Проект Y-282-1D
2 санузл. · 3 этаж
от 42 255 000 ₽
→
Проект A-281-1D
2 этаж
от 42 270 000 ₽
→
Проект одноэтажного коттеджа "Волчок" из газобетона
3 спальн. · 1 этаж
от 23 656 000 ₽
→
На сайт застройщика