Перейти к контенту
Подбор и сравнение проектов домов от застройщиков Московской области
Подборщик домов
Калькулятор сметы
Калькулятор площади
Форум
Блог
Главная
›
Каталог проектов
›
Проект U-284-1K
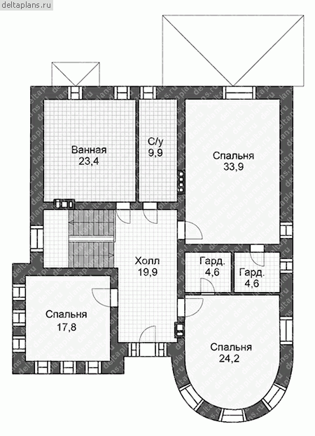
Проект U-284-1K
Застройщик: Юникс-Строй
284.6 м²
1 / 3
🏠
284.6 м²
📐
2 этаж
🧱
Кирпич
Похожие проекты
Похожие по цене
Похожие по площади
Проект особняка барнхаус Котово от компании БАКО
4 спальн. · 3 санузл. · 2 этаж
от 23 333 100 ₽
→
Проект дома «Вебер»
2 спальн. · 1 этаж
от 23 350 000 ₽
→
Проект M-155-1D
2 этаж
от 23 362 500 ₽
→
Проект дома «Зеллман»
5 спальн. · 2 этаж
от 14 693 242 ₽
→
Дом из газобетонных блоков С-285 ГБ «Ингрид»
5 спальн. · 2 санузл. · 2 этаж
от 11 980 000 ₽
→
Дом из керамических блоков С-285 КЕ «Ингрид»
5 спальн. · 2 санузл. · 2 этаж
от 11 980 000 ₽
→
На сайт застройщика